Listing provided courtesy of Shane Jones of Best of Pagosa Springs. Last updated 2023-08-10 23:01:47.000000. Listing information © 2026 .
Asking Price: $575,000
34 Simi, Pagosa Springs CO 81147
Community:
This property was built in 2023 and is priced at $575,000. Please see the additional details below.
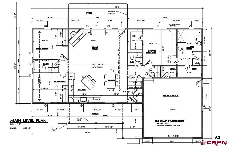
NEW CONSTRUCTION located in the Hatcher Lake Area. Just a short walk/ride to the National Forest, one of the county's best fishing lakes and some of the area's best hiking, biking and motorized use trails. This three bedroom three bathroom ranch style home with two car garage sits on .23 acres with public utilities such as internet, sewer, water, electric and phone. The open concept layout is smart and the finishes are as good as it gets at this price point with cathedral ceilings, fireplace, knotty alder custom Amish cabinets, his and hers walk-in-closets, an oversized master bath/ensuite, powder room off the living area, luxury vinyl floors, low maintenance metal siding, etc. Driveway will be paved, buyer/s can choose from several different fireplace and fireplace surround options and the home is prepped for A/C.







